Nhà Phố 3 Tầng 5×19 Trong Khu Hiệp Phúc.
—————–
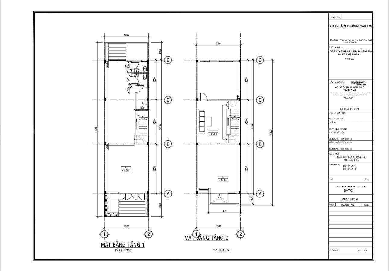
Diện tích và pháp lý:
Căn Số 3
– Diện tích: 5m x 19m.
– Thổ cư: 100%
– Hướng Tây Bắc
THIẾT KẾ CĂN NHÀ GỒM:
– Tầng 1: Mặt tiền kinh doanh, bếp, toilet
– Tầng 2: 2 phòng ngủ, toilet.
– Tầng 3: 1 phòng ngủ, phòng thờ, sân thượng.
Thiết kế ấm cúng, thích hợp vừa ở vừa kinh doanh, làm văn phòng.
Cách đường Hà Huy Tập tầm 50m.
Phòng gym ngay kế bên nhà.
Cách siêu thị , chợ Tân An 2 phút di chuyển.









