NHÀ 03 MÊ MẶT TIỀN ĐƯỜNG NGÔ VĂN NĂM (KHU HIỆP PHÚC) – PHƯỜNG TÂN LỢI – TP. BUÔN MA THUỘT.
—————–
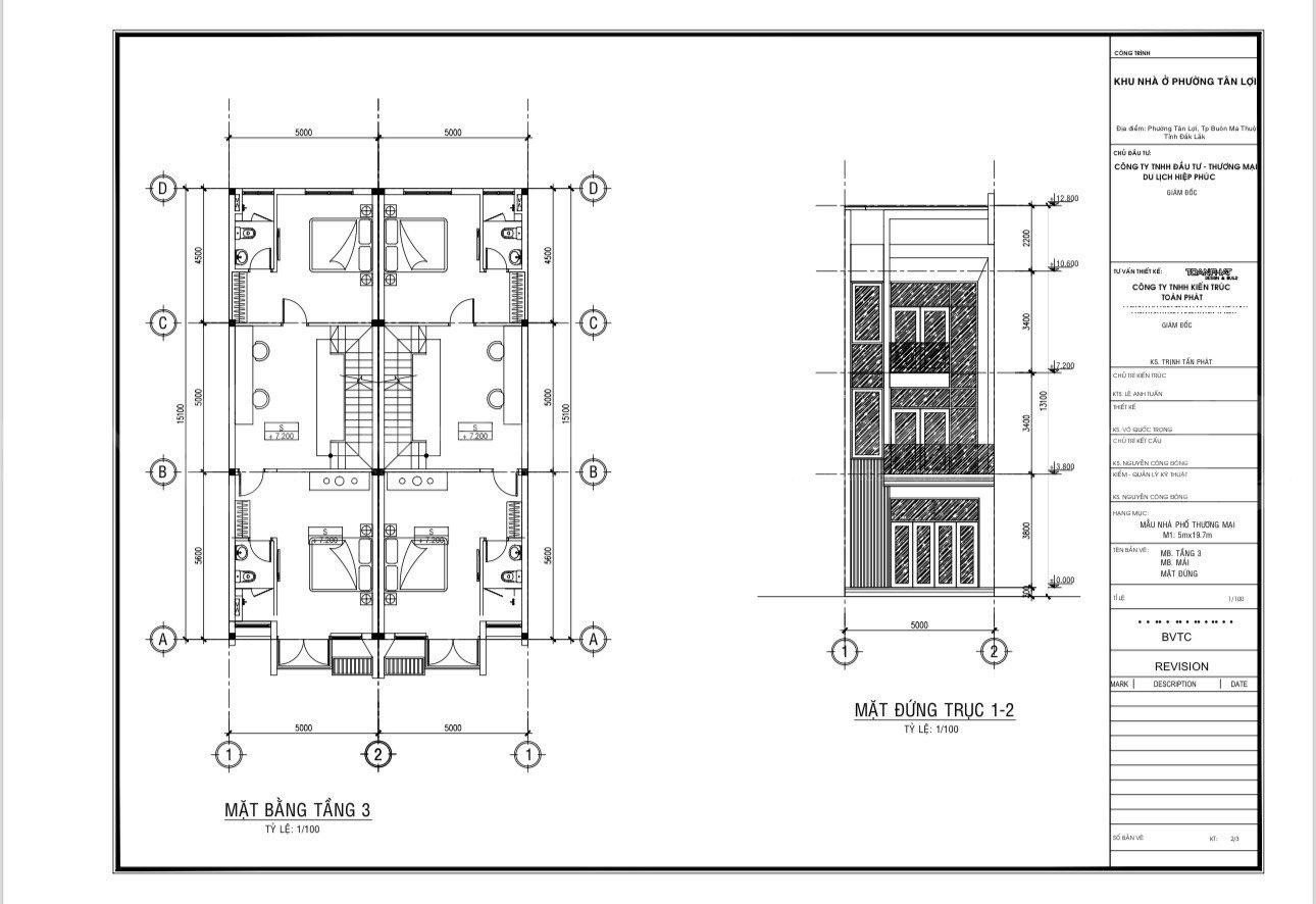
Căn Số 2
– Diện tích: 5m x 19m.
– Thổ cư: 100%
– Tầng 1: Mặt tiền kinh doanh, bếp, toilet
– Tầng 2: 2 phòng ngủ, toilet.
– Tầng 3: 1 phòng ngủ, phòng thờ, sân thượng..









